• Rear Elevation.PNG
  • IMG_8896.PNG
  • 40 Heronway1 SKM_C250i26020311560.jpg
  • 40 Heronway SKM_C250i26020312250.jpg
  • 40 Heronway SKM_C250i26020312290.jpg
  • 40 Heronway SKM_C250i26020312291.jpg
  • 40 Heronway SKM_C250i26020314330.jpg

Scroll Down

For Sale Heronway, Hutton Mount, Brentwood, CM13 Guide Price £1,395,000

Building Plot  For Sale Guide Price £1,395,000

Heronway, Hutton Mount, Brentwood, CM13

Prime South West Facing 0.25 Acre Plot on Hutton Mount

Full planning permission granted (REF 24/00246/FUL)

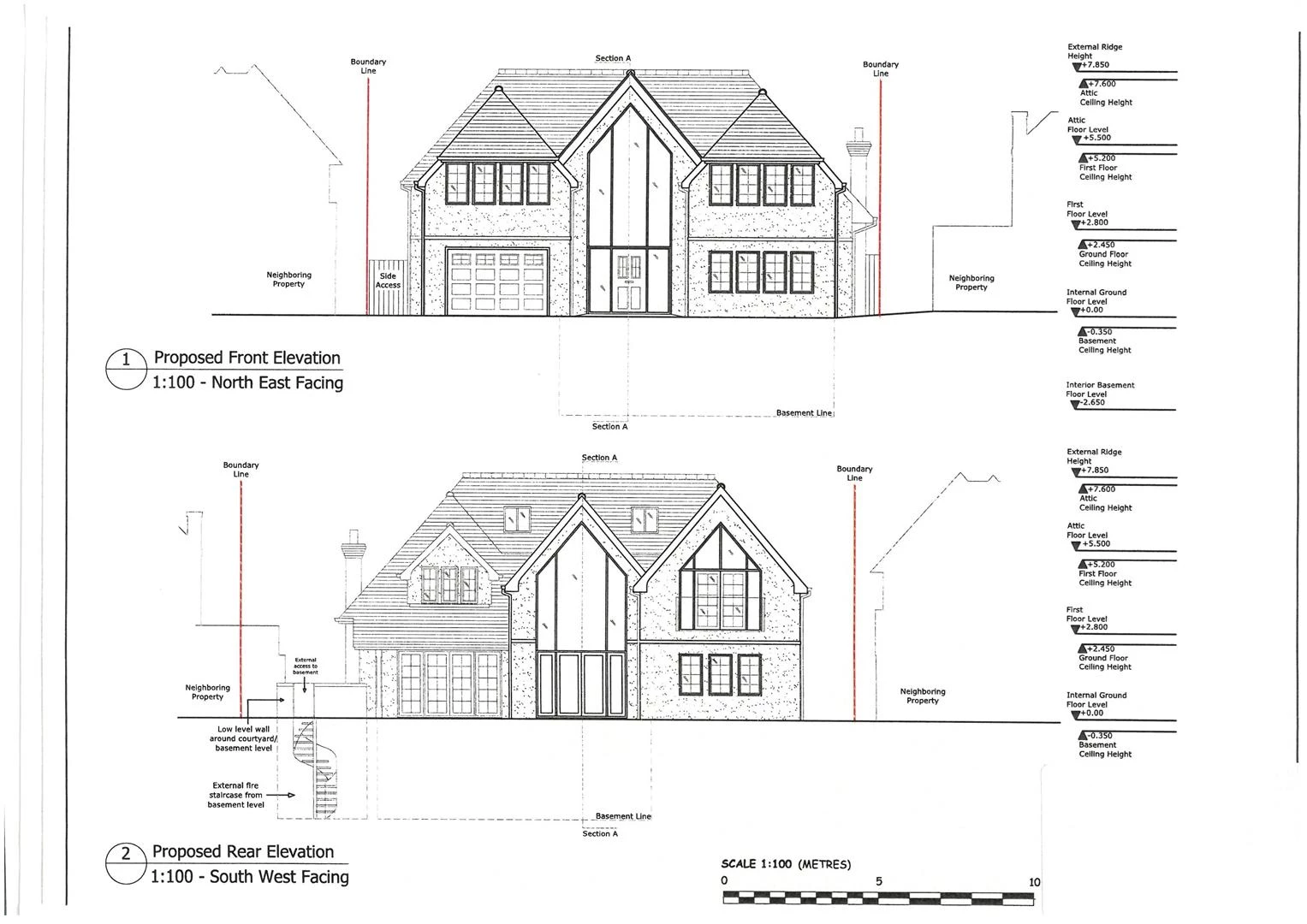
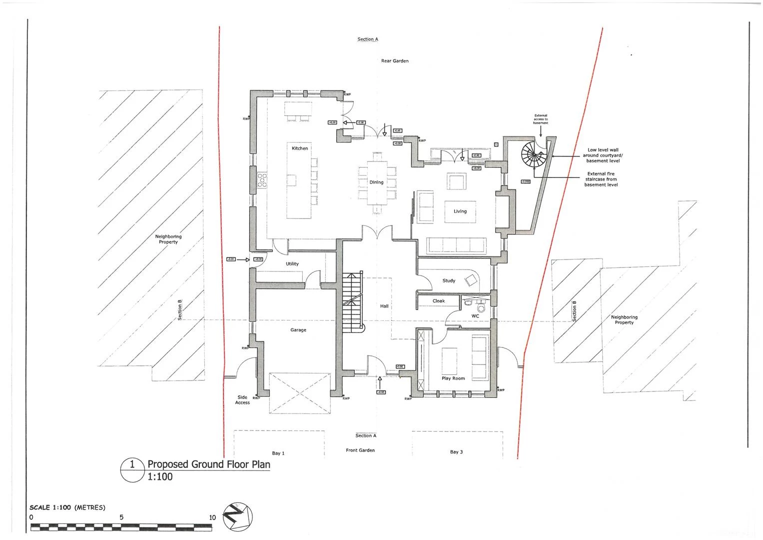
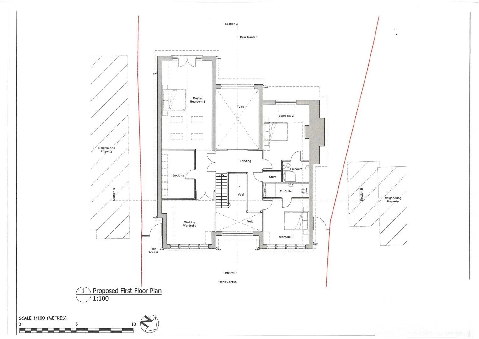
Approved scheme for 4,779 sq ft of high end accommodation arranged over three levels

Rare opportunity to build a bespoke home in a prestigious setting

Ideally located 0.9 miles from Shenfield Broadway, mainline station and Crossrail terminus

Excellent local schooling nearby, including the highly regarded St Martin s School

A rare opportunity to acquire a prime cleared building plot on Hutton Mount, positioned at the very heart of this prestigious private residential estate. This exceptional 0.25 acre south west facing plot presents a unique chance to construct a substantial luxury home arranged over three levels. Designed by a local architect, full planning permission has been approved (Ref: 24/00246/FUL) for a beautifully proportioned residence extending to approximately 4,779 sq ft. The approved scheme delivers an elegant and contemporary family home, thoughtfully arranged to maximise light, space and modern living. The design includes an impressive basement level featuring a cinema room, gym and bar, creating outstanding accommodation for both family life and entertaining.

Ideally located just 0.9 miles from Shenfield Broadway, the property benefits from convenient access to the mainline railway station and Crossrail (Elizabeth Line) terminus, offering excellent links into London. A range of highly regarded local schools are within easy reach, including the much sought after St Martin s School.

Set within one of the area s most exclusive and most desirable residential locations, this is a truly exceptional opportunity to build a landmark home in Hutton Mount.

For more detail, please contact our sales office.

All CGIs are based on the original bespoke designs for the current owner and are for illustrative purposes only

Location

Property Image

Rear Elevation.PNG
IMG_8896.PNG
40 Heronway1 SKM_C250i26020311560.jpg
40 Heronway SKM_C250i26020312250.jpg
40 Heronway SKM_C250i26020312290.jpg
40 Heronway SKM_C250i26020312291.jpg
40 Heronway SKM_C250i26020314330.jpg

Arrange a Viewing

Arrange a Viewing

Mortgage Calculator

Mortgage Details

Results

Stamp duty calculation

See full breakdown

Total SDLT due

Below is a breakdown of how the total amount of SDLT was calculated

Up to £0k (Percentage rate 0 %)

Above £0k and up to £0k (Percentage rate 0 %)

Above £0k and up to £0k (Percentage rate 0 %)

Above £0k and up to £0k (Percentage rate 0 %)

Above £0k and up to £0m (Percentage rate 0 %)

Above £om (Percentage rate 0 %)

Please note: This is for illustrative purposes only. The above calculator should not be relied upon when making financial decisions. Please seek advice from a specialist financial provider.

IMPORTANT NOTICE FROM MEACOCK & JONES

Descriptions of the property are subjective and are used in good faith as an opinion and NOT as a statement of fact. Please make further specific enquires to ensure that our descriptions are likely to match any expectations you may have of the property. We have not tested any services, systems or appliances at this property. We strongly recommend that all the information we provide be verified by you on inspection, and by your Surveyor and Conveyancer.