• Shencot1.jpg
  • Shencot4.jpg
  • Shencot2.jpg
  • Shencot3.jpg
  • Alexander Lane Site.jpg
  • shencot1.jpg
  • shencot2.jpg
  • shencot3.jpg

Scroll Down

Sold Alexander Lane, Hutton, Brentwood, CM13 £1,175,000

Building Plot  Sold £1,175,000

Alexander Lane, Hutton, Brentwood, CM13

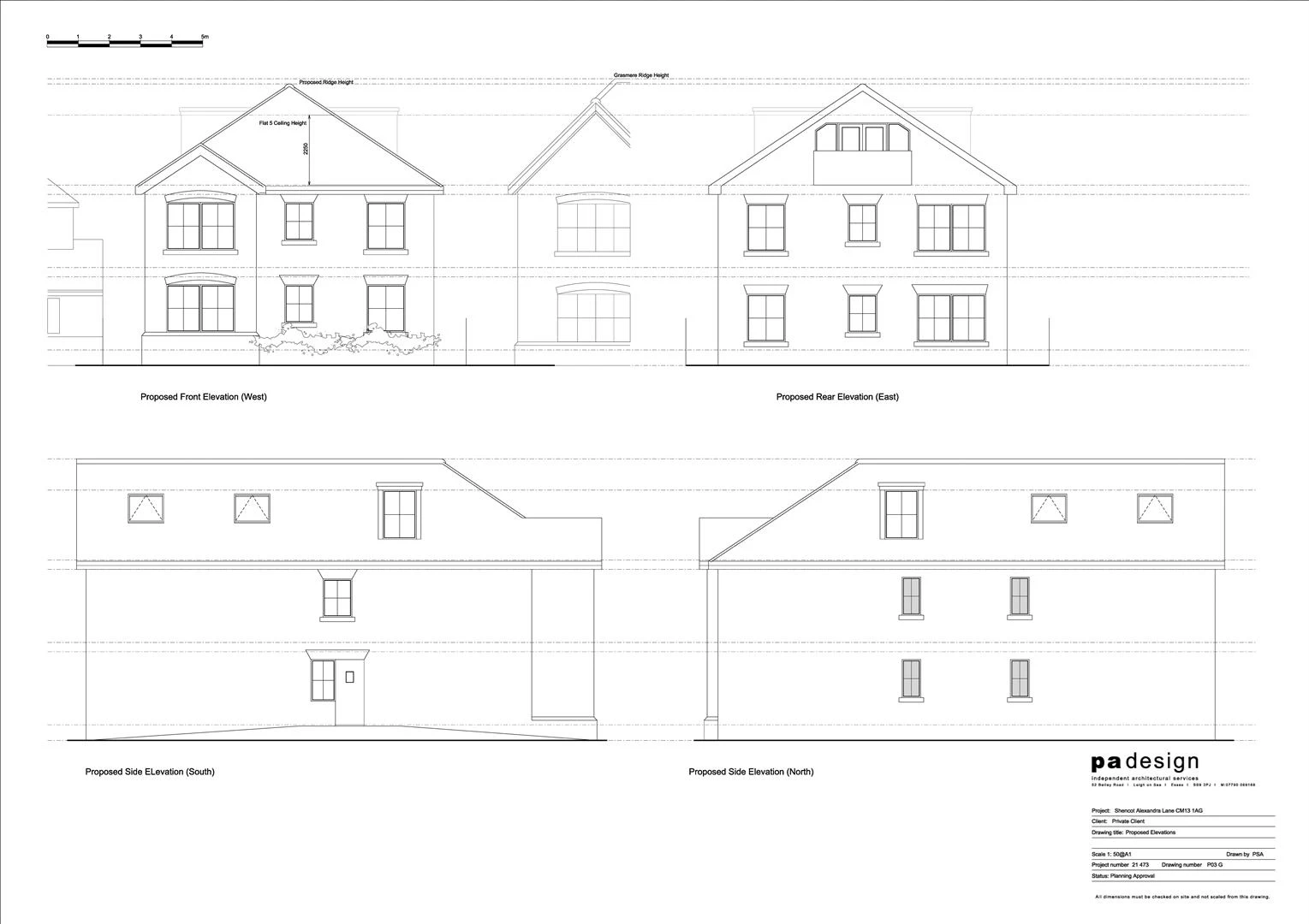
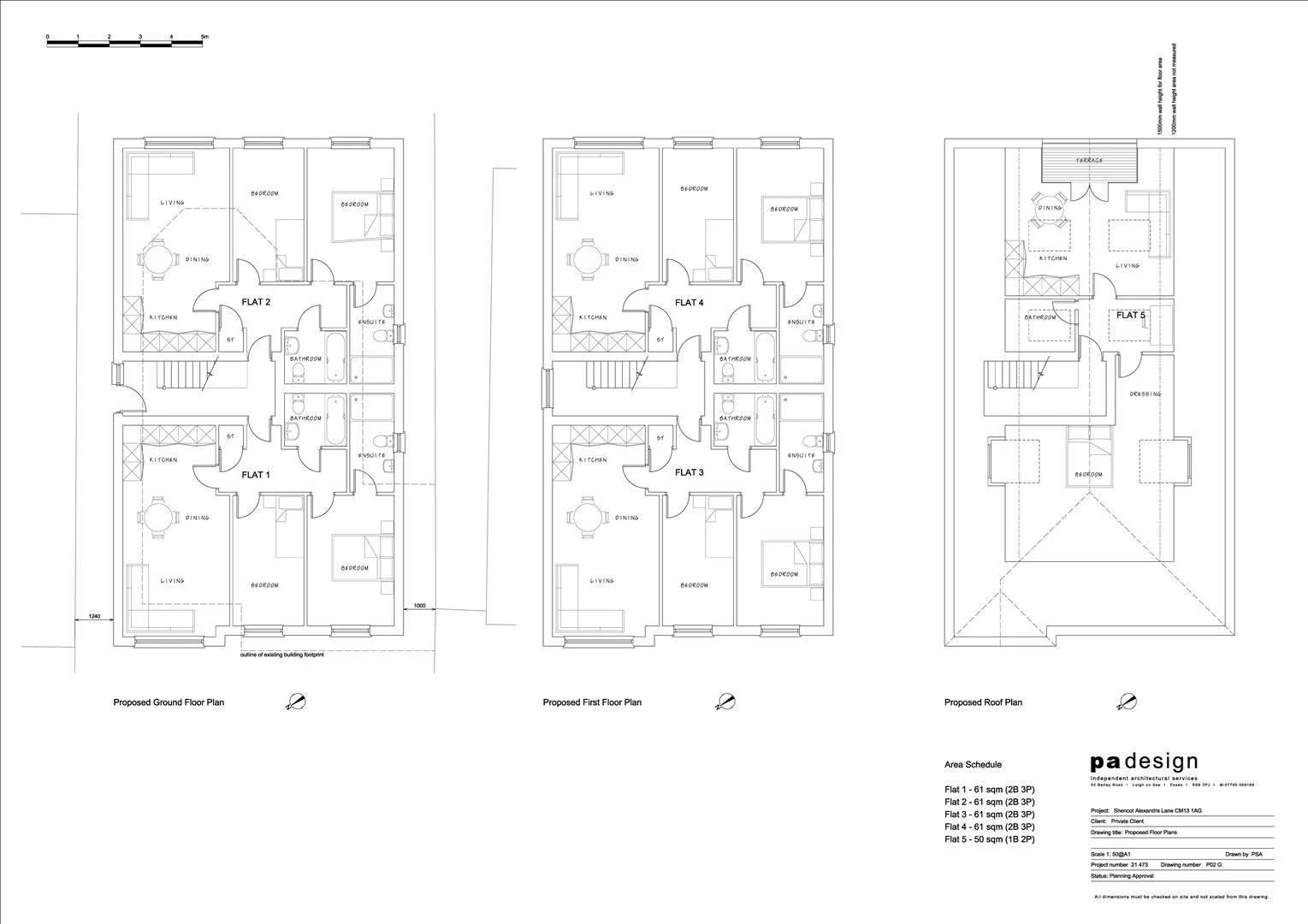
Detailed planning permission for the demolition of existing property and construction of new building containing five new dwellings

21/02027/FUL

0.161 Acre

Central Shenfield Location

0.2 miles Shenfield Station

Landscaped Garden To The Rear

A very well located and spacious plot within 0.2 mile of Shenfield mainline railway station, Crossrail terminus and shopping broadway. The site will offer an opportunity to acquire a centrally located plot within easy reach of good local schools and road systems. The site has plans approved by the Brentwood Borough Council (21/02027/FUL) to demolish the existing house and construct 5 residential flats. Opportunities to develop in such a central location are now increasingly rare. An appealing selling point is that the development will come with an extensive garden to the rear. This incorporates two substantial good quality outbuildings (fully insulated and supplied with electricity), attractively positioned on a raised aspect at the end of the present garden which could easily be converted to home office/workshop/gym space.

Location

Property Image

Shencot1.jpg
Shencot4.jpg
Shencot2.jpg
Shencot3.jpg
Alexander Lane Site.jpg
shencot1.jpg
shencot2.jpg
shencot3.jpg

Arrange a Viewing

Arrange a Viewing

This property is currently Sold. However, register your details below and we will contact you if it becomes available again.

Mortgage Calculator

Mortgage Details

Results

Stamp duty calculation

See full breakdown

Total SDLT due

Below is a breakdown of how the total amount of SDLT was calculated

Up to £0k (Percentage rate 0 %)

Above £0k and up to £0k (Percentage rate 0 %)

Above £0k and up to £0k (Percentage rate 0 %)

Above £0k and up to £0k (Percentage rate 0 %)

Above £0k and up to £0m (Percentage rate 0 %)

Above £om (Percentage rate 0 %)

Please note: This is for illustrative purposes only. The above calculator should not be relied upon when making financial decisions. Please seek advice from a specialist financial provider.

IMPORTANT NOTICE FROM MEACOCK & JONES

Descriptions of the property are subjective and are used in good faith as an opinion and NOT as a statement of fact. Please make further specific enquires to ensure that our descriptions are likely to match any expectations you may have of the property. We have not tested any services, systems or appliances at this property. We strongly recommend that all the information we provide be verified by you on inspection, and by your Surveyor and Conveyancer.